広瀬北小徒歩17分!既に3宅地成約済みの魅力的価格と好立地佐土原町平松【CIEL】6号地

コミコミ充実設備!
この設備が標準で付いています。
※BELSは物件によって評価が異なります
※物件により仕様が異なる場合がございます
※2024年6月28日時点

この商品のおすすめPOINT!
2025/10/31更新
◇仲介手数料無料!◆全室照明付き!◇リビングエアコン付き!◆ZEH基準住宅◇制震ダンパー搭載◆カーテンレール付き◇タッチレス水栓・深型食洗機付キッチン!◆キーレス玄関
- 価格
- 月々支払い
- 間取
- 学校区
- 築年月
- 階数
- 面積
- 2,980万円
- 65,429円
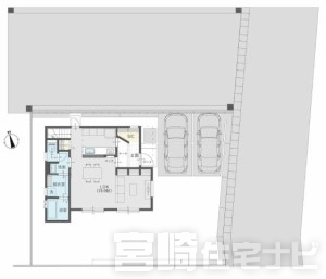
- 3SLDK
- 広瀬北小
久峰中 - 2026/01
- 2階建
- 土地/175.90m²
建物/101.43m²
| 価格 | 2,980万円 | 月々支払 | 65,429円 |
|---|---|---|---|
| 間取 | 3SLDK | 学校区 | 広瀬北小、久峰中 |
| 築年月 | 2026/01 | 階数 | 2階建 |
| 面積 | 土地/175.90m² 建物/101.43m² | ||
物件No:12000011830
動画ライブラリー
この物件の支払い例(当初10年間)
物件価格
頭金0円・ボーナス払い10万円(年2回)
※全額借入、35年返済、固定金利1.1%の場合
月々の支払い例
※お支払い例は、当社紹介の地方銀行ローン
(固定金利1.1%、35年返済、融資限度額1億円)となります。
経済情勢等により内容が変更となる場合がございます。
※お借り入れ条件によっては
支払金額が変更になる可能性があります。
ローンシミュレーション
簡単な借入条件を入力するだけで、手軽に住宅ローンの計算が行えます。
物件概要
| 物件種別 | 新築住宅 | 物件No. | 12000011830 |
|---|---|---|---|
| 所在地 | 宮崎県宮崎市佐土原町下田島
(マップ)
※ログインでマップの閲覧可能 |
||
| 小学校区 | 広瀬北小学校(1,300m) | 中学校区 | 久峰中学校(1,600m) |
| 土地面積 | 175.90m²(53.20坪) | 建物面積 | 101.43m²(30.68坪) |
|---|---|---|---|
| 構造 | 木造 | 階数 | 地上2階 |
| 間取り | 3SLDK | 築年月 | 2026年01月 |
| 駐車場 | 有(3台) | 水道 | |
| ガス | 排水 |
| 都市計画 | 市街化区域 | 用途地域 | 第一種住居 |
|---|---|---|---|
| 地目 | 宅地 | 土地権利 | 所有権 |
| 国土法 | 不要 | 私道負担 | 無 |
| 建ぺい率 | 60% | 容積率 | 200% |
| セットバック | 取引態様 | 売主 | |
| 現況 | 空家 | 引渡時期 | 即 |
| 交通 | 佐土原総合支所前バス停まで徒歩7分 |
|---|---|
| 接道状況 | 南東側 幅員6m 公道に接道 |
| セールス ポイント |
佐土原町【CIEL】6号地。広瀬北小学校まで徒歩17分の3SLDK!子育てグリーン住宅支援事業対象物件 |
| 情報登録日 | 2025年09月09日 |
| 情報更新日 | 2025年10月31日 |
| 有効期限 | 2025年11月14日 ※次回更新日は前回更新日より14日以内 |
| 担当店舗 |
大興不動産 本店(宮崎) 〒880-0055 宮崎県宮崎市南花ケ島町60番地2 本社ビル1階 |
|---|
人気物件ランキング
-
1位
宮交シティまで徒歩5分!屋上バルコニーのあるラグジュアリーホーム太田3丁目【CIEL】
宮交シティまで徒歩5分。利便性が良い!屋上バルコニー付きでBBQも楽しめる!太田3丁目【CIEL】
◇仲介手数料無料!◆全室照明付き!◇リビングエアコン付き!◆ZEH基準住宅◇制震ダンパー搭載◆カーテンレール付き◇タッチレス水栓・深型食洗機付キッチン!◆キーレス玄関 -
2位
眺望の良い高台×コスパ◎!ヌックや和室付きで工夫が詰まった平和が丘北町【CIELFLAT】。
池内小学校まで徒歩6分!閑静な高台住宅街に暮らす平和が丘北町【CIELFLAT】
◇仲介手数料無料!◆全室照明付き!◇リビングエアコン付き!◆ZEH基準住宅◇制震ダンパー搭載◆カーテンレール付き◇タッチレス水栓・深型食洗機付キッチン!◆キーレス玄関 -
3位
2階リビング×家事ラク動線でスマートに暮らす。希望ケ丘3丁目【CIEL】
本郷小学校まで徒歩3分。2階リビング×家事ラク動線でスマートに暮らす。希望ケ丘3丁目【CIEL】
◇仲介手数料無料!◆全室照明付き!◇リビングエアコン付き!◆ZEH基準住宅◇制震ダンパー搭載◆カーテンレール付き◇タッチレス水栓・深型食洗機付キッチン!◆キーレス玄関
店頭でしか公開していない物件も多数ございます!是非お気軽にご来店ください。
-

宮崎市エリア
〒880-0055
TEL. 0985-22-7777
宮崎県宮崎市南花ケ島町60番地2
本社ビル1階
-

延岡市エリア
〒882-0856
TEL. 0982-21-4141
宮崎県延岡市出北2丁目14番19号
太平ビル1階
-

日向市エリア
〒883-0041
TEL. 0982-52-1500
宮崎県日向市北町1丁目89番地
















